
德国NOOK诺克@进口喷嘴流量计是测量流量的差压发生装置,结构简单,无可动部件、长期使用稳定可靠,丰富的设计制造和应用经验。标准化程度高,可不必进行实流标定。配合各种差压计或差压变送器可测量管道中各种流体的流量。标准喷嘴节流装置与差压变送器配套使用,可测量液体、蒸汽、气体的流量。它在石油、化工、矿冶、钢铁、电力、水利、造纸、制药、食品和化纤等许多行业中被广泛使用。
进口喷嘴流量计一体式安装由智能显示仪(多参差变送器)和喷嘴装置一道组成喷嘴流量计。它自带有高品质的差压传感器、压力传感器,热电阻温度传感器。AW2003-型智能显示仪(多参差变送器)不仅在差压传感器量程范围自动适应,而且各种补偿系数如:流出系数C、流束膨张系数ε等均进行在线计算,真正实现了扩大量程的同时保证计量的精度。采用大屏幕LCD同屏显示累积流量、瞬时流量、瞬时压力、瞬时温度值,不用人工切换。4-20mA两线制瞬时流量输出。分本安型防爆产品及普通型产品两大类。分体式安装由独立的喷嘴装置、差压、压力、温度变送器、流量计算仪、截止阀等部份组合而成。各部份之间的连接组合由用户自己完成。尼科喷嘴流量变送器由喷嘴流量传感器和差压变送器组成,输出代表差压信号大小的4-20mA电信号,流量计算及温度、压力补偿由用户另外配置完成。有分体式安装和一体式安装两种结构。一体式安装是产品出厂时己将差压变送器与喷嘴连接成一体,用户购买一体式喷嘴后,使用时不需再连接引压管。但必需配接相应的流量计算器、压力变送器和温度变送器。分体式喷嘴流量变送器由独立的喷嘴流量传感器和差压变送器组成。喷嘴流量传感器和差压变送器之间的引压管连接由用户自己完成。
适用介质;特别适合高温高压蒸汽和水、也可用于各种气体、液体
·公称口径:DN50—500mm(DN>500亦可设计、生产)
·工作压力:≦42MPa
·工作温度:-50℃—650℃
·取压方式:角接(单独环室、法兰环室一体或直接钻孔)取压
·喷嘴安装方式:法兰(直接钻孔兼取压件)、紧固件夹持式
法兰、环室、紧固件夹持式
夹持件(兼取压件)焊接式
·执行标准:IS05167;GB/T2624
·精确度:符合标准:±1.0%
·材质:法兰或夹持件:按介质温度可选碳钢、合金钢;不锈钢等
喷嘴:不锈钢304;316等
(2)长径喷嘴
·适用介质;特别适合高温高压蒸汽和水、也可用于各种气体、液体
·公称口径:DN50—630mm
·工作压力:≦42MPa
·工作温度:-50℃-650℃
·取压方式:径距(D-D/2)取压
·喷嘴件安装方式:配带并焊接上、下游管段再按径距(D-D/2)设置取压孔·
·执行标准:IS05167;GB/T2624
·精确度:符合标准:±2.0%
·材质:上、下游管段按介质温度可选碳钢、合金钢;不锈钢等
喷嘴;不锈钢304;316等
结构形式
长径喷嘴
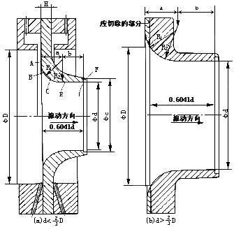
·标准喷嘴由垂直于轴线的入口平面部分A、圆弧形曲面B和C所构成的入口收缩部分、圆筒形喉部E和为防止边缘损伤所需的保护槽F组成,其取压方式上游取压口采用角接取压,下游取压口可按角接取压设置,也可设置于较远下游处。喷嘴总长度
·当0.30≤β≤2/3时,喷嘴长度=0.6041d
·当2/3≤β≤0.80时,喷嘴长度={0.4041+(0.75/β-0.25/β2-0.5225)0.5}d
·ISA1932喷嘴上游面由垂直于轴的平面、廓形为圆周的两段弧线所确定的收缩段、圆筒形喉部和凹槽组成的喷嘴。ISA1932喷嘴的取压方式仅角接取压一种。
·长径喷嘴上游面由垂直于轴的平面、廓形为1/4椭圆的收缩段、圆筒形喉部和可能有的凹槽或斜角组成的喷嘴。长径喷嘴的取压方式仅D-D/2取压一种。

| NK-PZ | 流量节流装置 | |||||||||||||
| 公称通径 | -XXX | 100表示DN100 | ||||||||||||
| 本体类型 | A | 标准孔板 | ||||||||||||
| B | 标准喷嘴 | |||||||||||||
| C | 长颈喷嘴 | |||||||||||||
| D | 经典文丘里 | |||||||||||||
| E | 粗旱文丘里 | |||||||||||||
| F | 粗铸文丘里 | |||||||||||||
| G | 文丘里喷嘴 | |||||||||||||
| H | 双文丘里(插入式) | |||||||||||||
| I | 双文丘里(内藏式) | |||||||||||||
| J | 环形孔板 | |||||||||||||
| K | 圆缺孔板 | |||||||||||||
| L | 偏心孔板 | |||||||||||||
| M | 高压透镜孔板 | |||||||||||||
| N | 双重1/4圆喷嘴 | |||||||||||||
| O | 双重孔板 | |||||||||||||
| P | 端头孔板 | |||||||||||||
| Q | 锥形孔板 | |||||||||||||
| R | 宽边孔板 | |||||||||||||
| S | 限流孔板 | |||||||||||||
| T | 机翼测风装置 | |||||||||||||
| U | 横截面 | |||||||||||||
| 取压方式 | 1 | 角接取压 | ||||||||||||
| 2 | 钻孔取压 | |||||||||||||
| 3 | 法兰取压 | |||||||||||||
| 4 | 径距取压 | |||||||||||||
| 本体法兰材质 | 1 | 碳钢 | ||||||||||||
| 2 | 不锈钢 | |||||||||||||
| 3 | 合金钢 | |||||||||||||
| 4 | 非金属 | |||||||||||||
| 节流件材质 | S | 304不锈钢 | ||||||||||||
| L | 316L不锈钢 | |||||||||||||
| Q | 其他 | |||||||||||||
| 结构形式 | Z | 智能一体化 | ||||||||||||
| L | 分体式 | |||||||||||||
| 测量介质 | 1 | 液体 | ||||||||||||
| 2 | 气体 | |||||||||||||
| 3 | 蒸汽 | |||||||||||||
| 管道静压 | A | 0~0.6MPa | ||||||||||||
| B | 0~1.0MPa | |||||||||||||
| C | 0~1.6MPa | |||||||||||||
| D | 0~2.5MPa | |||||||||||||
| E | 0~1.0MPa | |||||||||||||
| F | 0~6.3MPa | |||||||||||||
| G | 0~10MPa | |||||||||||||
| H | 0~16MPa | |||||||||||||
| I | 0~25MPa | |||||||||||||
| J | 0~42MPa | |||||||||||||
| 安装形式 | 1 | 管道焊接式 | ||||||||||||
| 2 | 法兰连接式 | |||||||||||||
| 3 | 一体化式 | |||||||||||||
| 工艺条件 | 0 | 普通 | ||||||||||||
| 1 | 防腐 | |||||||||||||
| 2 | 高温 | |||||||||||||
| 3 | 防爆 | |||||||||||||
| 补偿方式 | 0 | 无补偿 | ||||||||||||
| P | 单压力补偿 | |||||||||||||
| T | 单温度补偿 | |||||||||||||
| Q | 温压补偿 | |||||||||||||
| 一体化信号输出 | 0 | 无 | ||||||||||||
| 1 | 4~20mA | |||||||||||||
| 2 | 脉冲 | |||||||||||||
| 3 | Hart | |||||||||||||
| 一体化供电方式 | 0 | 内部电池供电 | ||||||||||||
| 1 | 电池与24VDC双选择供电 | |||||||||||||
| 2 | 外24VDC供电 | |||||||||||||