
德国NOOK诺克@进口潜水搅拌机又称潜水推进器,潜水搅拌机的电机绕组为F级绝缘,防护等级为IP68。在污水厂的曝气系统中配合使用,可使系统能耗大大降低,且充氧量明显提高,能有效的防止沉淀。根据工艺要求,直联式潜水搅拌可配用导流罩。适用于污水处理厂的工艺流程中推进搅拌含有悬浮物的污水、稀泥浆、工业过程液体等,创建水流,加强搅拌功能,防止污泥沉淀,是市政和工业污水处理工艺流程上的重要设备:分为混合潜水搅拌机、潜水推进搅拌机。
适用与工业和城市污水处理厂曝气池和厌氧池,可用池中水循环及硝化、脱氮和除磷阶段创建水流等。 混合搅拌系列产品选用多极电机,采用直联式结构,能耗低,效率高;叶轮通过精铸或冲压成型,精度高,推力大,外型美观流畅,结构紧凑。进口潜水搅拌机采用摆线针轮减速机,配备功率小,转速低,叶轮直径大,服务面积广。叶轮由聚胺脂材料和铝合金铸成,强度高,耐腐蚀性强,除了具有搅拌的功能外还能外还兼有推流和创建水流的作用。
公称通径:Φ25~Φ600mm
流量范围:10-320m3/h
增氧范围:0.37-24kgO2/h
功率范围:0.75-22kw
转速范围:2900r/min
温度范围 :-20℃~120℃
工作压力:≤1.6Mpa
泵体材质:WCB、304、316、四氟
混合系列搅拌机适用于污水处理厂和工业流程中搅拌含有悬浮物的液体;
低速推流系列搅拌机适用于工业和城市污水处理厂曝气池,其产生低切向流的强力水流,可用于循环及硝化、脱氮和除磷阶段创建水流等。
进口潜水搅拌机在下列条件下应能正常连续运行:
1、高介质温度不超过40℃;
2、介质的PH值在5~9之间;
3、液体密度不超过1150kg/m3;
4、长期潜水运行,潜水深度一般不超过20m。
警 告!
进口潜水搅拌机潜水搅拌机必须完全潜入水中工作,不能在易燃易爆和强腐蚀性的环境中工作! 
1、潜水搅拌机结构紧凑、操作维护简单、安装检修方便、使用寿命长。
2、叶轮具有佳的水力设计结构,工作效率高,后掠式叶片具有自洁功能可防杂物缠绕、堵塞。
3、与曝气系统混合使用可使能耗大幅度降低,充氧量明显提高,有效防止沉淀。
4、电机绕组绝缘等级为F级,防护等级为IP68,选用进口轴承和独有专利的电机防凝露装置,使电机的工作更加安全可靠。
5、两道机械密封,材质为碳化钨-碳化钨。
6、根据工艺要求,直联式潜水搅拌可配用导流罩。
7、潜水搅拌机的不锈钢、碳钢精铸焊接叶桨,经优化设计叶片呈后掠式,效率高,具有自洁功能。
8、内部设有泄漏传感器和定子绕组超温保护报警装置。

混合搅拌系列产品选用多极电机,采用直联式结构,能耗低,效率高;叶轮通过精铸或冲压成型,精度高,推力大,外型美观流畅,结构紧凑。
低速推流系列产品采用摆线针轮减速机,配备功率小,转速低,叶轮直径大,服务面积广。叶轮由聚胺脂材料和铝合金铸成,强度高,耐腐蚀性强,除了具有搅拌的功能外还能外还兼有推流和创建水流的作用。
潜水搅拌机的电机绕组为F级绝缘,防护等级为IP68。在污水厂的曝气系统中配合使用,可使系统能耗大大降低,且充氧量明显提高,能有效的防止沉淀。根据工艺要求,直联式潜水搅拌可配用导流罩。
进口潜水搅拌机主要应用在市政和工业污水处理过程中的混合、搅拌和环流,也可用于景观水环境的养护,通过叶轮旋转运动达到创建水流的作用,改善水体质量,增加水中含氧量,有效阻止悬浮物的沉积。工艺和工业流程需要保持固、液二相或固、液、气三相介质均匀混合反应的场所。
| 电机功率(Kw) | 额定电流(A) | 叶轮转速(r/min) | 叶轮直径(mm) | 推力 (N)  | 重量 (Kg)  | 
| 0.85 | 3.2 | 740 | 260 | 163 | 55/65 | 
| 1.5 | 4.0 | 980 | 260 | 290 | 55/65 | 
| 2.2 | 5.9 | 740 | 320 | 582 | 88/93 | 
| 4 | 10.3 | 960 | 320 | 609 | 88/93 | 
| 1.5 | 5.2 | 740 | 400 | 600 | 74/82 | 
| 2.5 | 7 | 740 | 400 | 800 | 74/82 | 
| 3 | 8.6 | 740 | 400 | 920 | 74/82 | 
| 4.0 | 10.3 | 980 | 400 | 1200 | 74/82 | 
| 4.0 | 14 | 480 | 620 | 1400 | 190/206 | 
| 5.5 | 18.2 | 480 | 620 | 1800 | 196/212 | 
| 7.5 | 28 | 480 | 620 | 2600 | 240/256 | 
| 10 | 32 | 480 | 620 | 3300 | 250/266 | 
注:潜水搅拌机在额定电压为380伏,频率为50HZ的性能参数如上表

以上流速场是在清水中,边界水流速度为V=0.1m/s工况下。
进口潜水搅拌机的选型是项比较复杂的工作,选型方案的正确与否直接影响到设备的正常使用,作为选型的原则就是耍让搅拌机在适台的容积里发挥充分的搅拌功能,这个标准一般可用流速来确定,根据污水处理厂的不同工艺要求,搅拌机选型的佳流速应保证在0.15—0.3m/s之间,如果低于0.15m/s的流速则达不到推流搅拌的效果,如果超过0.3m/s的流速则会影响工艺教果且造成浪费。
所以在选型前,首先要确定潜水搅拌机运用在什么场所,如污水池,污泥池还是生化池;其次是介质的参教,如:悬浮物含量、温度、PH值等:还有水池的形状、水深甚至安装方式等都将对选型产生影响,同时还应考虑到节能因素,因为这将会影响到用户今后的运行成本。可参考下面的常水搅拌机流场图。为了满足在不同的环境下都能达到佳的搅拌功能,我们为用户提供了多种型号的潜水搅拌机,同时可提供选型服务。
进口潜水搅拌机的安装定位对其揽拌效果有很大的影响,为了达到事半功倍的运行效果,我们建议用户按专业设计人员的要求去做,要充分专虑到水池的形状,进出水的位置以及搅拌机的水流反射到构筑物而引起的涡流等情况,尽量减少短路循环和死角的产生,避免与池壁的撞击而降低流速。参照下面的运行模式图,可帮助您合理选择搅拌机和安装形式。
 
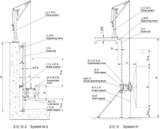
十三、进口潜水搅拌机安装示意图

| a | D | b | L | h1min | h2min | 安装系统 | 
| Φ48 | 360 | 330 | 630 | 500 | 110 | Ⅰ | 
| Φ48 | 360 | 330 | 630 | 500 | 110 | Ⅰ | 
| Φ70 | 460 | 320 | 970 | 800 | 150 | Ⅱ | 
| Φ70 | 460 | 320 | 970 | 800 | 150 | Ⅱ | 
| Φ70 | 530 | 320 | 960 | 500 | 200 | Ⅱ | 
| Φ70 | 530 | 320 | 960 | 500 | 200 | Ⅱ | 
| Φ70 | 530 | 320 | 1010 | 800 | 200 | Ⅱ | 
| Φ70 | 530 | 320 | 1010 | 800 | 300 | Ⅱ | 
| Φ100 | 820 | 335 | 1150 | 1100 | 300 | Ⅲ-1,Ⅲ-2 | 
| Φ100 | 620 | 335 | 1150 | 1100 | 300 | Ⅲ-1,Ⅲ-2 | 
| Φ100 | 820 | 335 | 1280 | 1500 | 300 | Ⅲ-1,Ⅲ-2 | 
| Φ100 | 820 | 335 | 1280 | 1500 | 300 | Ⅲ-1,Ⅲ-2 | 
注:1、潜水搅拌机的专用安装系统,可在无需排出池中污水的情况下,快速安装和拆卸潜水搅拌机;
2、安装系统I只适用于池深<4m,机型为QJBO.85/8和QJBl.5/6,且可在水平方向和垂直方向调节角度;当池深>4m时,应选用安装系统II型。
3、安装系统II、III导杆可沿水平方向绕导杆轴线旋转,大转角为±60°;
4、当H>4m时需,在导杆中间添加一支撑架;
5、支撑架和下托架与池壁、池底均用膨胀螺栓或化学锚栓固定,无需预留孔;
6、客户定货时,请提供池深H及池型图,以便确定导杆尺寸和支撑架个数;
7、安装系统材质采用不锈钢和碳钢防腐可供选择;
8、多台搅拌机可共用一套起吊系统。







潜水搅拌机安装注意事项
◎导杆或导向钢丝应与水平垂直,可采用铅锤校正;
◎吊钩在起吊潜水搅拌机时,叶轮端较水平面上应上仰5°-10°
◎通过起吊装置上的链条的调节,使得潜水搅拌机沿导杆或导向钢丝滑下过程中,起吊钩和潜水搅拌机的起吊重心处于同一垂直线上。
潜水搅拌机的选型是一项比较复杂的工作,选型的正确与否直接影响设备的正常使用,作为选型的原则就是要让潜水搅拌机在适合的容积里发挥充分的搅拌功能,一般可用流速来确定。根据污水处理厂不同的工艺要求,潜水搅拌机佳流速应保证在0.15~0.3m/s之间,如果低于0.15m/s的流速则达不到推流搅拌效果,超过0.3m/s的流速则会影响工艺效果且造成浪费。所以在选型前首先确定QJB潜水搅拌机运用的场所,如:污水池、污泥池、生化池;其次是介质的参数,如:悬浮物含量、粘度、温度、PH值;还有水池的形状、水深甚至安装方式等都对选型产生影响,同时还应考虑到节能因素,因为这将影响到用户今后的运行成本。可参考下面的潜水搅拌机流场图。
为保证潜水搅拌机取得佳效果,请使用方提供如下资料:
1、运用目的
2、池型
3、池尺寸
4、介质特性包括粘度、密度、固体物含量等。
潜水搅拌机所需要的配套功率是按容积大小,搅拌液体的密度、粘度和搅拌深度而确定的,根据具体情况应采用一台或多台搅拌机。
1、选型问题,请与我公司技术部门联系。
2、进口潜水搅拌机必须完全潜入水中工作,不能在易燃易爆的环境下或有强腐蚀性液体的环境中工作,小潜入深度900mm。
十、进口潜水搅拌机选型方法参考资料:
1、根据图1或表1确定待搅拌介质的污泥校正系数。
2、根据图2或表2确定搅拌池的池型校正系数。
3、按每立方米清水所需耗功4.8W,乘以污泥校正系数,再乘以池型校正系数,得出每立方米待混合搅拌介质所需耗功的实际值,再乘以待搅拌介质的体积,得出整池待混合搅拌介质所需的功率。
图1:淤泥校正系数曲线
Ⅰ-一次淤泥;Ⅱ-二次淤泥;Ⅲ-水解淤泥
表1:污泥校正系数表
表2:池型校正系数表
表3:池型校正系数表
| 深度/直径 | 池型系数 | 深度/直径 | 池型系数 | 
| 0.10 | 1.40 | 0.85 | 1.05 | 
| 0.15 | 1.3l | 0.90 | 1.08 | 
| 0.20 | 1.25 | 0.95 | 1.11 | 
| 0.25 | 1.19 | 1.00 | L15 | 
| 0.30 | 1.14 | 1.05 | 1.19 | 
| 0.35 | 1.10 | 1.10 | 1.25 | 
| 0.40 | 1.08 | 1.15 | 1.32 | 
| 0.45 | 1.05 | 1.20 | 1.40 | 
| 0.50 | 1.04 | 1.25 | 1.48 | 
| 0.55 | 1.02 | 1.30 | 1.58 | 
| 0.60 | 1.01 | 1.35 | 1.68 | 
| 0.65 | 1.00 | 1.40 | 1.78 | 
| 0.70 | 1.00 | 1.45 | 1.89 | 
| 0.75 | 1.01 | 1.50 | 2.00 | 
| 0.80 | 1.03 | ||
| 注:矩形池,表中直径取池宽 | |||
以下流速场是在清水中,边界水流速度为V=0.1m/s 工况下:

和传统长轴搅拌机相比,QJB型潜水搅拌机的优点在于可生产不同的流向。由搅拌机的不同安装位置,可得到不同效果的多种流动模式。从而在池中创造更好的流动模式,消除搅拌死角。搅拌机所需要的配套功率是按池容积大小,介质的密度、粘度和挽排介质深度等确定的,根据其体情况,应选用一台或多台搅拌机。 为了保证提拌机在不同池型中的运行高效节能.可参考下列的典型安装形式。
该旋转流动公式是筒单的一种。在相时较短的运行时间内就创造高的流速,在非溶性固体含量高的介质中,这是一种高效的搅拌方式。然而必须注意,较重的物质可能沉积在池底中央。
![]()  | ![]()  | ![]()  | 
| 该旋转流动公式是筒单的一种。在相时较短的运行时间内就创造高的流速,在非溶性固体含量高的介质中,这是一种高效的搅拌方式。然而必须注意,较重的物质可能沉积在池底中央。 | 如果搅拌机轴线与池中线成7-10°安装,可形成全池挽拌而不会产生旋转。池中液体的深度应在池的直径的0.3-1倍之间。 | 对角错开,避免短路循环 | 
如按下图方式安装搅拌机可在方形池形成高效的搅拌效果。当使用一台搅拌机时,池长宽比不大于5。否则应安装多台搅拌机。若长宽比不大于2.5可得到佳运行效果。
![]()  | ![]()  | ![]()  | 
| 如池宽小于5-8倍的叶轮的情况下,可按上图安装方式 | 在较大池中,搅拌机可按上图安装 | 考虑进出口 | 
![]()  | ![]()  | ![]()  | 
| 利用池壁反射 | 射流的交叉 | 使用多个搅拌机时,推荐使用 | 
| 搅拌推流设备 | 市场同类产品 | 
| 1.开发研制起点高,自主知识产权多 以提高国产装备能力、替代进口为已任,自主创新研发了满足市场细分要求的系列化产品。拥有多项原创设计和多项专利技术,其机械性能、水力性能和降耗节能水平领先于国内外。拥有一项国家发明专利。  | 1.技术落后、故障较高 同类产品,未有多大创新,采用的叶轮结构、传动结构、导轨耦合座结构、密封结构等仍然是上世纪复制的技术,设备性能严重滞后污水处理工艺要求,不但没有技术进步,而且故障较高。  | 
| 2.克服了市场同类产品的缺陷,排除了市场同类产品的故障 1)解决了使用寿命短、需经常维修更换的技术难题; 2)解决了运行噪音大、振动大的技术难题; 3)解决了因污水中有杂物缠绕机械密封件而使密封不可靠的技术难题; 4)解决了减速传动机构体积大、重量重、轴向长度长、传动件容易损坏的技术难题; 5)解决了起吊装置提升不灵活、容易卡死的技术难题; 6)解决了水下安装座与混凝土地基固定不牢靠、容易松动,造成水下维修困难的技术难题; 7)解决了水下耦合座能实现对设备自动固定和夹紧的技术难题; 8)解决了叶轮平衡、防腐、几何误差、受力均衡等一系列技术难题; 9)解决了电缆线进线密封处因拽拉而漏水的技术难题; 10)解决了污水处理厂改造扩容需带水安装的技术难题。  | 2.缺陷一直存在,未见改进、故障居高不下,难以排除 多年来,市场同类产品一直存在着使用寿命短、减速机构容易损坏、运行不平稳、噪音振动大、动密封失效漏水、上下滑移卡死、不灵活、推流效果差、能耗高等问题。故障多、维修麻烦、维护成本高。  | 
| 3.产品特色及技术优势 1)玻璃钢叶轮,高强度复合材料,整体式成型、耐腐蚀能力强、水阻小、重量轻、效率高,几何中心对称性好、动平衡度高,为国内外首创; 2)微型潜水式传动箱,结构紧凑、传动平稳、体积小、重量轻、效率高、故障少、寿命长。 3)内置腔油润滑动密封系统,密封可靠,永久不受污水中污物的影响; 4)底座式承力方式,设备重力由底座承受,运行稳定,避免了传统的导杆承力方式而引起的晃动和振动; 5)卧床式V锥吸振耦合座,V锥结构,能实现设备自动对中和就位、自动固定和夹紧;侧面设置减振垫,以吸收振动,自然调适设备的就位状态;整体卧床式布置,犹如婴儿躺在摇篮里,平稳和安全; 6)导轨式底座支撑结构,既是提升导向机构,又是吸振耦合座承力支撑,提升滑移稳定,支撑受力简洁可靠,抵抗侧向偏心而引起的冲击载荷能力强; 7)电缆线设置防拽拉保护装置,该装置有两部分组成,一是水下进线密封处辅助保护机构,保护进线密封不被拽拉损坏;二是水上防电缆线脱落机构,保护电缆线不会掉落、不会被叶轮缠绕; 8)组合式防卡死滑移机构,提升机构上设计轴套定位式双轴承防尘滑轮,确保滑轮本身转动灵活,不会发生轮缘摩擦两面支撑件的情况;设备尾翼上设计适度的移动滑轮组,使其不存在与导轨发生自锁的现象,保证滑移顺畅; 9)桁架式带水安装装置,该装置为国内外首创,应市场用户要求而开发研制,直接在水上固定安装设备。 10)帮助用户科学选型,配置合理化功率; 11)一般配置和优良配置,适合用户需求  | 3.同类产品技术状况 1)常规材料叶轮,或重量大,或耐腐蚀性弱,或刚性差,动态工况下叶片变形,或韧性低,受不平衡冲击力易折断。特别是叶片与轮毂分体式组合,螺纹式联结,不仅轮毂结构复杂,体积大,重量大,且难以保证两叶片中心对称的几何精度,更难保证长时间工作螺纹不松动。另外,叶片的造型千姿百态,很多未经严谨的设计和科学的论证,而因水力性能差、推流搅拌能力低,能耗高; 2)通用减速转动机构,适应潜水工况的能力不强,且结构闲散,体积大,传动效率低,故障率高,寿命短; 3)敞口式污水润滑机械密封结构,机械密封件靠污水润滑,直接裸露在污水中,易受水草、纤维、悬浮颗粒的缠绕和损伤; 4)导杆承力结构,设备重量由水下导轨承受,导轨较长,中下部受力,刚性不够,易形成晃动和振动。 5)水下耦合座采用平板式托架或坐凳式托架,这种结构无法实现对设备自动固定和夹紧,振动在所难免。设备在平板式托架或坐凳式托架上运行,其稳定性效果与卧床式V锥吸振耦合座相距甚远。 6)无电缆线防拽拉保护装置,电缆线进线密封处无辅助保护装置,易因拽拉而影响密封效果。上部无防电缆线脱落机构,电缆线会掉落、或被叶轮缠绕; 7)提升滑移组合轮易  |