
德国NOOK诺克@进口低速推流器广泛用于氧化沟推流,各类生化池的搅拌,河流防冻,景观水循环以及工业和城市污水处理厂曝气池和厌氧池,其产生低切向流的强力水流,可用于池中水循环及硝化、脱氮和除磷阶段创建水流、开辟河道及河床防水之用等。进口低速推流器主要由潜水电机、减速装置、叶桨和安装系统等组成。进口低速推流器特点是配套功率小(1.5~7.5Kw),转速低(36~135r/min),叶桨直径大(1000~2500mm),低速旋转,产生大体积流场,服务范围广。它的后掠式香蕉型叶桨设计,具有自洁功能,采用聚氨酯或铝合金材质精铸成型,具有重量轻,强度高,耐腐蚀等优点,其优异的摩擦性能,可保证进口低速推流器在低转速的运动状态下于液体产生良好的阻尼效果,从而创建出柔和的水流。进口低速推流器系列产品除了具有推流和创建水流的作用外还具搅拌功能。其搅拌功能表现在主要运用在市政和工业污水处理过程中的混合、搅拌和环流,也可用作景观水环境的养护设备,通过搅拌达到创建水流作用,改善水体质量,增加水中含氧量,有效阻止悬浮物沉积。
公称通径:Φ25~Φ600mm
流量范围:10-320m3/h
增氧范围:0.37-24kgO2/h
功率范围:1.5~7.5Kw
转速范围:36~135r/min
温度范围 :-20℃~40℃
工作压力:≤1.6Mpa
泵体材质:WCB、304、316、四氟
低速推流器是一种兼搅拌混合和推流功能为一体的浸没式设备。该设备通过后曲式叶轮将液体在向前推进的同时,将氧化池里的污泥进行充分地搅拌混合,以改善氧化池等污水处理设施的水流条件,使不同的水体获得污水处理工艺所要求的流速,以防止污泥沉降,提高污水处理效率。特别是生化处理过程中,可使污水和活性污泥充分混合,在好氧/厌氧工艺使污水脱氮、避免水体富营养化的发生。
进口低速推流器采用过载、过热及防渗漏三重保护的专用潜水电机;配备圆柱斜齿硬齿面减速器;体积小,具有可靠的密封性。特别是叶轮,是国内首家采用船舶螺旋桨水力推进理论由计算机进行优化设计,两叶高推力、自洁型叶轮采用整体式铸造成型,重量轻、强度好,可在一定的输入功率条件下,获得佳的水流推力。
1、螺旋叶轮带后掠角,具有优良的自净功能和防缠绕特性。
2、密封可靠、无渗漏,并设有泄漏、过热等功能保护。
3、安装方便迅速,能适合各种类型的水池。
4、能耗低,无噪声。

1、尾翼:内部设有泄露传感器和电机绕组超溢保护报警装置。
2、电缆线:独特的电缆密封设计排除了电缆漏水的隐患。
3、电机:电机绕组绝缘等级为F级,防护等级为IP68,选用一次润滑免维护进口轴承,具有油室泄漏检测和电机绕组过热保 护功能,使电机的工作更加安全可靠。
4、减速装置
5、叶桨:叶桨由弹性聚氨脂或铝合金制成,能承受变化的负荷,推力被平均分配到混合物上,具佳水力设计。
6、机械密封:两套独立的机械密封,保证潜水电机长期可靠运行。
7、轴承:进口的高质量一次润滑轴承,设计使用寿命8000小时。
8、内部设有泄漏传感器和电机绕组超温保护报警装置。
1.高介质温度不超过40℃;
2.介质的PH值在5~9之间;
3.液体密度不超过1150kg/m3;
4.长期潜水运行,潜水深度一般不超过10m。
进口低速推流器在额定电压为220伏,频率为50Hz的性能参数如下表:
| 电机功率(kW)  Motor power  | 额定电流(A)  Rated current  | 叶轮转速(r/min)  Rpm of vane or propeller  | 叶轮直径(mm)  Diameter of vane or propeller  | 推力(N)  Thrust  | 重量(kg)  Weight  | |
| 0.85 | 3.2 | 740 | 260 | 163 | 55/65 | |
| 1.5 | 4 | 980 | 260 | 290 | 55/65 | |
| 2.2 | 5.9 | 740 | 320 | 582 | 88/93 | |
| 4 | 10.3 | 960 | 320 | 609 | 88/93 | |
| 1.5 | 5.2 | 740 | 400 | 600 | 74/82 | |
| 2.5 | 7 | 740 | 400 | 800 | 74/82 | |
| 3 | 8.6 | 740 | 400 | 920 | 74/82 | |
| 4 | 10.3 | 980 | 400 | 1200 | 74/82 | |
| 4 | 14 | 480 | 620 | 1400 | 190/206 | |
| 5 | 18.2 | 480 | 620 | 1800 | 196/212 | |
| 7.5 | 28 | 480 | 620 | 2600 | 240/256 | |
| 10 | 32 | 480 | 620 | 3300 | 250/266 | |
| 1.5 | 4 | 85 | 1000 | 1780 | 170 | |
| 3 | 6.8 | 135 | 1100 | 2410 | 170 | |
| 1.5 | 4 | 36 | 1400 | 696 | 180 | |
| 2.2 | 4.9 | 42 | 1400 | 854 | 180 | |
| 2.2 | 4.9 | 36 | 1600 | 1058 | 190 | |
| 3 | 6.8 | 52 | 1600 | 1386 | 190 | |
| 1.5 | 4 | 42 | 1800 | 1480 | 198 | |
| 3 | 6.8 | 52 | 1800 | 1946 | 198 | |
| 4 | 9 | 63 | 1800 | 2750 | 198 | |
| 2.2 | 4.9 | 36 | 2000 | 1459 | 200 | |
| 4 | 9 | 52 | 2000 | 1960 | 200 | |
| 4 | 9 | 52 | 2200 | 1986 | 220 | |
| 5 | 11 | 63 | 2200 | 2380 | 230 | |
| 3 | 6.8 | 36 | 2500 | 2380 | 230 | |
| 4 | 9 | 42 | 2500 | 2350 | 250 | |
| 5 | 11 | 52 | 2500 | 3090 | 250 | |
| 7.5 | 15 | 63 | 2500 | 4275 | 28 | 
进口低速推流器在额定电压为380伏,频率为50Hz的性能参数如下表:
| 电机功率Motor power(kW) | 额定电流Rated current(A) | 叶轮转速Impeller speed(r/min) | 叶轮直径Impeller diameter(mm) | 推力thrust(N) | 重量weight(kg) | 
| 1. 5 | 4 | 85 | 1000 | 1780 | 170 | 
| 3 | 6.8 | 135 | 1100 | 2410 | 170 | 
| 1.5 | 4 | 36 | 1400 | 696 | 180 | 
| 2.2 | 4.9 | 42 | 1400 | 854 | 180 | 
| 2.2 | 4.9 | 36 | 1600 | 1058 | 190 | 
| 3 | 6.8 | 52 | 1600 | 1386 | 190 | 
| 1.5 | 4 | 42 | 1800 | 1480 | 198 | 
| 3 | 6.8 | 52 | 1800 | 1946 | 198 | 
| 4 | 9 | 63 | 1800 | 2750 | 198 | 
| 2.2 | 4.9 | 36 | 2000 | 1459 | 200 | 
| 4 | 9 | 52 | 2000 | 1960 | 200 | 
| 4 | 9 | 52 | 2200 | 1986 | 220 | 
| 5 | 11 | 63 | 2200 | 2380 | 230 | 
| 3 | 6.8 | 36 | 2500 | 2380 | 230 | 
| 4 | 9 | 42 | 2500 | 2350 | 250 | 
| 5 | 11 | 52 | 2500 | 3090 | 250 | 
| 7.5 | 15 | 63 | 2500 | 4275 | 280 | 
注:以上规格型号为常规产,但不局限于上表,可为客户拓展设计新的或含特殊要求的搅拌机。
1、根据图B1或表B1确定待搅拌介质的污泥校正系数。

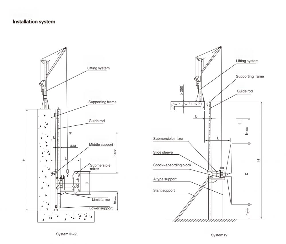
| Installation guide rod diameter | Diameter of deflector | Distance between guide rod and wall | Distance from wall to front end of equipment | Installation level | Distance from equipment to pool bottom | 安装系统Installation system | 
| Φ40 | 360 | 330 | 630 | 500 | 110 | I | 
| Φ40 | 360 | 330 | 630 | 500 | 110 | I | 
| Φ70 | 460 | 320 | 970 | 800 | 150 | II | 
| Φ70 | 460 | 320 | 970 | 800 | 150 | II | 
| Φ70 | 530 | 320 | 960 | 500 | 200 | II | 
| Φ70 | 530 | 320 | 960 | 500 | 200 | II | 
| Φ70 | 530 | 320 | 1010 | 800 | 200 | II | 
| Φ70 | 530 | 320 | 1010 | 800 | 300 | II | 
| Φ70 | 820 | 335 | 1150 | 1100 | 300 | III-1, III-2 | 
| Φ70 | 620 | 335 | 1150 | 1100 | 300 | III-1 , lIl-2 | 
| Φ70 | 820 | 335 | 1280 | 1500 | 300 | III-1, III-2 | 
| Φ70 | 820 | 335 | 1280 | 1500 | 300 | III-1, III-2 | 
| Φ40 | 1000 | 200 | 1240 | 1000 | 185 | III-1 , III-2, IV | 
| Φ50 | 1100 | 200 | 1240 | 1000 | 185 | III-1, III-2, IV | 
| Φ40 | 1400 | 200 | 1212 | 750 | 85 | III-1, III-2, IV | 
| Φ40 | 1400 | 200 | 1212 | 750 | 85 | III-1, III-2, IV | 
| Φ40 | 1600 | 200 | 1212 | 750 | 85 | III-1, III-2, IV | 
| Φ50 | 1600 | 200 | 1250 | 800 | 85 | III-1 , III-2, IV | 
| Φ40 | 1800 | 200 | 1212 | 800 | 85 | III-1, III-2, IV | 
| Φ50 | 1800 | 200 | 1250 | 800 | 85 | III-1 , lll-2, IV | 
| Φ50 | 1800 | 200 | 1250 | 900 | 85 | III-1, III-2, IV | 
| Φ40 | 2000 | 200 | 1340 | 750 | 85 | III-1 , lll-2, IV | 
| Φ50 | 2000 | 200 | 1370 | 800 | 85 | III-1 , lll-2, IV | 
| Φ50 | 2200 | 200 | 1370 | 800 | 85 | III-1, III-2, IV | 
| Φ70 | 2200 | 200 | 1370 | 800 | 85 | III-1, III-2, IV | 
| Φ50 | 2500 | 200 | 1340 | 750 | 85 | III-1, III-2, IV | 
| Φ50 | 2500 | 200 | 1370 | 800 | 85 | III-1 , III-2, IV | 
| Φ70 | 2500 | 200 | 1370 | 800 | 85 | III-1, III-2, IV | 
| Φ70 | 2500 | 200 | 1430 | 850 | 85 | III-1 , lll-2, IV | 



进口低速推流器可以有多种安装方式,这里提供四种通用的方式供选择,尺寸可参考下表。还可以根据用户的要求作特殊设计。