
HGS07玻璃管视镜@德国NOOK诺克是工业管道装置上主要附件之一,在石油、化工、医药、食品等工业生产装置的管道中,玻璃管视镜能随时观察管道中液体、气体、蒸汽等介质流动及反应情况,起到监视生产、避免生产过程中事故发生的作用。
HGS07玻璃管视镜具有超高的耐腐蚀性,并且加工容易,外表美观,同时玻璃管视镜采用钢化硼硅玻璃,聚乙烯四氟垫片,使玻璃管视镜适用于大部分恶劣的工作环境中,并且使用寿命较长。是工业管道装置上主要附件之一,在石油、化工、医药、食品等工业生产装置的管道中,玻璃管视镜能随时观察管道中液体、气体、蒸汽等介质流动及反应情况,起到监视生产、避免生产过程中事故发生的作用。由于结构紧凑,它安装简单,使用方便,非常容易清洗与维修,是目前最常用的一种玻璃管视镜。
| 壳体材质 | 钢化硼硅玻璃、石英玻璃 | |
| 法兰、紧固件 | 不锈钢304 | 不锈钢316 | 
| 工作温度(℃) | 0℃~180℃ | 0℃~180℃ | 
| 公称压力(MPa) | <0.6 | 0.6 MPa ~1.6MPa | 
| 密封件材质 | 丁腈橡胶、聚四氟乙烯 | |
| 连接形式 | 螺纹连接、法兰连接、快装、焊接 | |
| 允许急变温度(℃) | <60 | |
 
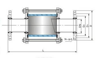
| G | DN | L | D | D1 | D2 | N-φd | 
| 1/2 | DN15 | 250 | 95 | 65 | 46 | 4-φ14 | 
| 3/4 | DN20 | 250 | 105 | 75 | 55 | 4-φ14 | 
| 1 | DN25 | 250 | 115 | 85 | 65 | 4-φ14 | 
| 1 1/4 | DN32 | 250 | 135 | 100 | 78 | 4-φ18 | 
| 1 1/2 | DN40 | 250 | 145 | 110 | 85 | 4-φ18 | 
| 2 | DN50 | 250 | 160 | 125 | 100 | 4-φ18 | 
| 2 1/2 | DN65 | 250 | 180 | 145 | 120 | 4-φ18 | 
| 3 | DN80 | 250 | 195 | 160 | 135 | 4-φ18 | 
| 4 | DN100 | 250 | 215 | 180 | 155 | 8-φ18 | 
| 5 | DN125 | 250 | 245 | 210 | 185 | 8-φ18 | 
| 6 | DN150 | 250 | 280 | 240 | 210 | 8-φ23 |